Bản vẽ Cad van cửa phai là một bản vẽ kỹ thuật chi tiết của van cửa phai được thiết kế và vẽ bằng phần mềm CAD (Computer-Aided Design). Bản vẽ này được sử dụng để sản xuất và lắp đặt cửa phai trong các dự án xây dựng – nội thất. Bài viết tổng hợp bản vẽ Cad van cửa phai mới nhất dưới đây sẽ giúp bạn tạo ra một bản vẽ chính xác và đầy đủ cho các công trình của bạn. Việc đầu tư vào bản vẽ Cad van cửa phai sẽ giúp bạn tiết kiệm thời gian và chi phí trong quá trình sản xuất – lắp đặt.
Bản vẽ Cad van cửa phai
Nếu bạn đang làm việc trong lĩnh vực xây dựng, thiết kế cửa, hay khoa học kỹ thuật, chắc hẳn không còn xa lạ với khái niệm bản vẽ Cad. Và trong bài viết này chúng tôi sẽ giới thiệu về một loại bản vẽ Cad đặc biệt – Bản vẽ Cad van cửa phải, và tại sao nó lại quan trọng đối với các công trình.

Bản vẽ cad van cửa phai VNP
Đầu tiên, hãy cùng tìm hiểu về Cad. Đây là một phần mềm thiết kế kỹ thuật tạo ra những bản vẽ 2D và 3D, được ứng dụng rộng rãi trong các lĩnh vực quan trọng như xây dựng, sản xuất, cơ khí,… Và trong các công trình, bản vẽ Cad được xem là một phần không thể thiếu, để giúp các kỹ sư có thể ước lượng và kiểm soát kích thước, hình dáng, và các chi tiết khác của sản phẩm, trước khi bắt đầu sản xuất hoặc lắp đặt.

Bản vẽ cad van cửa phai
Điểm đặc biệt của bản vẽ Cad van cửa phai, là nó cho phép thiết kế cửa phải một cách chính xác và chuyên nghiệp, đảm bảo rằng cửa sẽ hoạt động một cách trơn tru, an toàn và hiệu quả. Như bạn có thể biết, van cửa phải được sử dụng phổ biến trong các thiết bị công nghiệp, như hệ thống xử lý nước thải, hệ thống điều hòa không khí, hệ thống đường ống,…

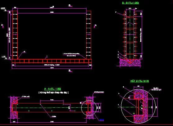
Bản vẽ autocad van cửa phai
Nhờ bản vẽ Cad van cửa phải, các kỹ sư có thể tạo hình 3D chính xác của van cùng hệ thống, từ đó có thể đánh giá và điều chỉnh thiết kế, giảm thiểu các lỗi và hao phí trong sản xuất, lắp đặt. Do đó, bản vẽ Cad van cửa phải giúp tăng khả năng thành công của dự án, tiết kiệm chi phí và thời gian cho các nhà thầu.

Bản auto cad van cửa phai
Tóm lại, bản vẽ Cad van cửa phải không chỉ đảm bảo tính chính xác và hiệu quả cho các thiết bị công nghiệp, mà còn giúp tối ưu hóa các quy trình sản xuất và lắp đặt. Nếu bạn đang tìm kiếm giải pháp thiết kế chuyên nghiệp cho dự án của mình, hãy tham khảo đến các dịch vụ về bản vẽ Cad, để đảm bảo thành công và hiệu quả cho công trình của mình.
Van cửa phai
Van cửa phai là 1 thiết bị được dùng với mục đích ngăn dòng và điều tiết lưu lượng dòng chảy.
Van cửa phai có các loại như:
- Van cửa phai lắp trên kênh
- Van cửa phai lắp miệng cống
- Van cửa phai lắp cửa sông cửa biển

Van cửa phai
Cấu tạo van cửa phai
Van cửa phai (hay còn gọi là van khóa) bao gồm các thành phần chính sau:
- Thân van: là bộ phận chính của van, nó được thiết kế để giữ cho tất cả các bộ phận khác đều được gắn cứng và có chức năng giữ nước.
- Cánh van: là bộ phận mở hoặc đóng để điều chỉnh dòng chảy của chất lỏng. Có thể là van cửa phẳng hoặc van cửa lỗ bên trong. Hai loại cánh van này có cách hoạt động khác nhau.
- Tấm gió: giúp kiểm soát dòng chảy của chất lỏng. Nếu cửa van đóng không hoàn toàn thì tấm gió giúp ngăn chặn sự tràn vào và tiết lộ điều kiện của trạng thái mở hoặc đóng.
- Tay vặn: dùng để mở hoặc đóng van.
- Trục truyền: bộ phận kết nối cánh van với trục vít me nâng.
- Vít me nâng: giúp biến chuyển động quay từ bộ điều khiển trở thành loại chuyển động tịnh tiến xảy ra trên trục truyền
Lắp đặt van cửa phai
Xác định chính xác vị trí lắp đặt khung
Để lắp van khung cửa phai, nhân viên kỹ thuật cần lấy thước vạch dấu vị trí đặt khung. Rồi đường vạch dấu phải được lưu chết trên bờ tường bằng dụng cụ chuyên dụng
Định vị – gắn bu lông
Dựa vào đường vạch dấu trên tường ở bước trên, đặt khung cửa van vào. Căn chỉnh vị trí van khớp với những đường đã được đánh dấu từ trước. Van được xác định là đặt chuẩn khi đã phủ kín được toàn bộ mặt cống. Cuối cùng, khoan lắp mỗi bên của van cửa phai 1 bulong neo.
Trám khe và dán gioăng cao su
Trong lắp đặt van cửa phai đôi lúc xuất hiện khe hở. Bởi vậy xây sửa bề mặt bê tông cần phải có công đoạn xử lý để không gây ra rò rỉ giữa khung và tường, ảnh hưởng hiệu suất công trình. Ta có thể trám khe bằng keo chuyên dụng và đồng thời lắp dán gioăng cao su vào các khe đó.
Lắp đặt phụ kiện van cửa phai: Bu lông neo
Trong khi tiến hành lắp bổ sung các bu long neo còn lại bắt buộc kiểm tra liên tục. Nếu như phần khung van đã lắp không hoàn toàn tiếp xúc với phần tường. Cần nhất là không được xiết chặt các bu lông quá dẫn đến nguy cơ bị bóp méo khung, uốn cong khung.
Việc tiếp theo cần làm là kiểm tra lại độ phẳng của tường và của khung phải đạt tiêu chuẩn quy định để có thể đưa vào hoạt động hiệu quả. Trường hợp vẫn còn khe hở chưa được xử lý triệt để, công nhân tiếp tục trám cho tới khi kín thì mới được dừng.
Khi đã giải quyết toàn bộ vấn đề phát sinh ngoài lề, mới hoàn thiện việc xiết cố định tất cả bu lông neo trên khung rồi dùng cẩu để nâng van cửa phai lên vị trí hợp lý.
Đơn vị lắp đặt van cửa phai
Đơn vị lắp đặt van cửa phải là một trong những đơn vị nổi tiếng và uy tín tại Việt Nam về lĩnh vực lắp đặt van cửa phải. Với nhiều năm kinh nghiệm và đội ngũ kỹ sư, nhân viên nhiệt tình và chuyên nghiệp, đơn vị này đã đáp ứng được tất cả các yêu cầu từ khách hàng.
Với nhiều sản phẩm đa dạng và độ bền cao, đơn vị lắp đặt van cửa phai cam kết luôn cung cấp cho khách hàng những sản phẩm chất lượng và giá cả hợp lý nhất. Bên cạnh đó, đội ngũ kỹ sư của đơn vị này sẽ tư vấn và giúp khách hàng lựa chọn sản phẩm phù hợp nhất cho mục đích sử dụng của mình.
Khách hàng có thể yên tâm khi sử dụng dịch vụ của đơn vị lắp đặt van cửa phai vì sản phẩm được bảo hành lâu dài và đảm bảo tính an toàn, độ chính xác, tính hiệu quả cao.
Với đội ngũ nhân viên chuyên nghiệp, giá cả hợp lý, dịch vụ tư vấn và hỗ trợ khách hàng 24/7, đơn vị lắp đặt van cửa phai đã trở thành lựa chọn hàng đầu của rất nhiều khách hàng khi có nhu cầu lắp đặt van cửa phai. Hãy liên hệ ngay với đơn vị này để được tư vấn và hỗ trợ tốt nhất!
Nếu bạn cần tư vấn và sử dụng dịch vụ của VNP hãy liên hệ theo thông tin sau:
CÔNG TY CP CƠ ĐIỆN VÀ MÔI TRƯỜNG
160 Tựu Liệt, Tam Hiệp, H.Thanh Trì, Hà Nội
Điện thoại: 0967.608.800
Xem thêm: Bản Vẽ Kỹ Thuật Van Cửa Phai Mới Nhất 2023
