Bể Tuyển Nổi là một thiết bị dùng để tách và loại bỏ các chất rắn hòa tan (TDS) từ chất lỏng dựa trên những thay đổi trong độ tan của khí áp khác nhau. Không khí được hòa tan dưới áp lực trong một chất lỏng sạch và bơm trực tiếp vào bể Tuyển Nổi. Sau khi vào bể, áp suất không khí được tạo ra và kết hợp với chất lỏng, mà sẽ trở thành siêu bão hòa với các bong bóng khí có kích thước Micro. Các bong bóng không khí li ti sản xuất một lực hấp dẫn cụ thể bám dính vào các phần tử rắn lơ lững trong nước và nâng các hạt lơ lửng nổi lên bề mặt chất lỏng, tạo thành một lớp bùn nổi được loại bỏ bởi dàn cào ván bùn mặt. Chất rắn nặng lắng xuống đáy hồ và cũng được cào gom lại và hút ra ngoài bằng bơm hút bùn để đưa về khu xử lý bùn xử lý.
Bể Tuyển Nổi dùng phương pháp gắn các hạt chất thải khí. Tất cả các bong bóng bám dính các chất rắn là rất mong manh và bất ổn trong các đơn vị nổi phải được giữ ở mức tối thiểu để ngăn chặn sự suy giảm về hiệu suất hoạt động.
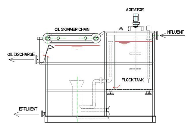
Sơ đồ hoạt động bể tuyển nổi

Bể tuyển nổi được cấu tạo bao gồm một bể tròn hoặc hình chữ nhật. Bên trên bể và đáy bể được thiết kế hai dàn cào bùn. Thiết bị được kết nối với một số thiết bị phụ trợ bên ngoài gồm bình trộn nước, bơm nước trộn, máy nén khí…
Bể tuyển nổi có hai dạng, dạng trụ và hạng vuông
 
 
Nguyên tắc hoạt động của bể tuyển nổi
Nước được đưa vào bồn khí tan bằng bơm áp lực cao. Không khí được cấp vào bồn khí tan bằng máy nén khí, tại đây nước và không khí được hòa trộn. Nước bão hòa không khí chảy vào ngăn tuyển nổi của bể tuyển nối, qua một van giảm áp suất, áp suất được giảm đột ngột về áp suất khí quyển. Khí hòa tan được tách ra và dính bám vào các hạt cặn trong nước, quá trình tuyển nổi được hình thành.
Các thông số thiết kế bể tuyển nổi
Thời gian lưu nước tại bể tuyển nổi: 20 – 60 phút
Tỉ số A/S (air/ sludge): 0,02 – 0,45
Thời gian lưu nước tại bồn khí tan: 0.5- 3 phút
Tải trọng bề mặt: 2- 350m3/m2/ngày
Áp lực khí nén: 3.5 -7atm
Lượng không khí tiêu thụ: 15 – 50l/m3
Ưu điểm:
Hiệu quả loại bỏ hàm lượng chất rắn lơ lửng cao: 90 -95%
Giảm được thời gian và dung tích bể so với các công trình khác
Loại bỏ được các hạt cặn hữu cơ khó lắng
Kết hợp với quá trinh tuyển nổi sử dụng hóa chất đem lại hiệu quả cao
Bùn cặn thu được có độ ẩm thấp, có thể tái sử dụng
Nhược điểm
Chi phí đầu tư , bảo dưỡng thiết bị cao
Đòi hỏi kỹ thuật khi vận hành
Cấu tạo phức tạp, quá trình kiểm soát áp suất khó khăn
Nguyễn Đức An

 Hàng nhập khẩu
Hàng nhập khẩu Hàng trong nước
Hàng trong nước Phụ kiện
Phụ kiện Van thủy lực
Van thủy lực Thiết bị chống ngập
Thiết bị chống ngập